取灵感于窗外的山峦景观,“峦”的空间规划以层叠式设计为中心,形体结构如山峦般层层呈现,给予人心境的安定与富足。

客餐厅一体的开放式空间,使得有限面积里视觉观感达到最大化。天花板木格栅与灰色雾面地砖平行相对,将整个空间在横向上无限延展。低彩度的冷色调穿插于细腻的材质关系,加之光影变化下的明暗转换,尽致刻画出空间多面向的层次。



大窗户前布满岁月痕迹的旧木,与黄铜茶几的光亮表面形成鲜明对比,材质的混搭倒也为空间平添了几分趣味。出自荷兰建筑师里特维尔德的红蓝椅,在静谧的深色背景中担当主角,仿佛从无声映画中跳脱,开启现代建筑语汇与低度设计空间的对话。








居住之外,“峦”的空间功能还注入了以文会友的闲情逸趣。而茶和酒,已然成为幽人雅士不可或缺的待客之物。

旧木回到日用中化作茶几获得新生,灰色玻璃围合成酒窖仿若另一方天地。禅茶一体,酒通仙道,由屋主对品质生活的细节体现,可知其外在物质与内心静笃的平衡探求。



设计公司:玮奕国际设计工程有限公司
设计师: 方信原、洪于茹
座落位置:台湾
空间性质:单层居住空间
面积:180㎡
设计时间:2013.11~2013.12
施工时间:2016.11~2017.04
主要建材:意大利进口类水泥磁砖(THK/20MM), 钢刷橡木皮染色喷漆处理,THK/9MM铁板,皮革及麻纱绷布,灰色石材(安格拉珍珠)仿古面处理,灰色强化玻璃THK/10MM,
海岛型木地板,冷喷漆
摄影师:Hey!Cheese
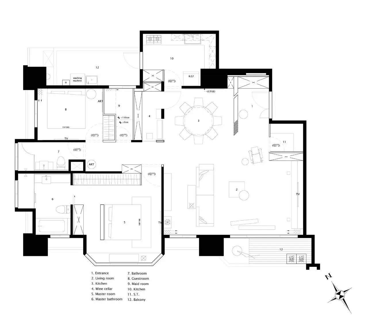
▲平面图